
Casa 4 camere Colentina, Plumbuita, cu vedere la parc și lac Bucuresti Sect
Descriere
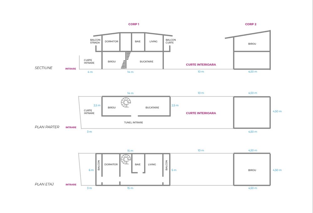
Vrei sa stai intr-o oaza de liniste, la 15 minute de principalele puncte ale orasului? BENEFICI 1. ZONA - casa de inchiriat situata in zona Plumbuita - Tei - acces rapid la zona de Nord, la 5 minute de mers cu masina 2. TEHNICE - casa P+M de 3 camere - atelier / birou / studio 1 camera clădire separată - detine o suprafata utila de 131 mp - detine teren total 150 mp, amprenta 90 mp, curte libera 60 mp - singur in curte - detine 1 dormitor, 1 living si 2 birouri, se pretaza unui cuplu, 1 camera ( living se poate converti in al 2-lea dormitor ) 3. SITUATIE JURIDICA - se va achita o chirie si o garantie 4. Unde se poate petrece timpul liber - Parcul Plumbuita, Parcul Tei, Parcul Circului, Herăstr u 5. Proprietarul va închiria doar familiilor sau tinerilor liniștiți, respectuoși, serioși. - Contact prin Whats Up text la numarul afisat